Opel Combo E (RPO IO6)!

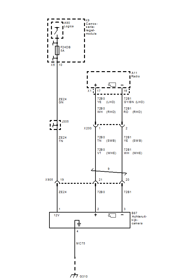
Achteruitrijcamera plaatsen Combo E "5.0 Navi Intellilink".

Het is mogelijk om een achteruitrijcamera te plaatsen op dit type radio"IO6".


Gebruik 2 klemmen om op plaats 16 en 17 te steken (6542WY).

r

Wiring rearcamera

De programmering gebeurt via sps met VCI of via servicebox.

Optiecode voor camera= UVC

Homepage